CASE IN VENDITA
Sono stati trovati 245 immobili
Ordina per:
€ 250.000
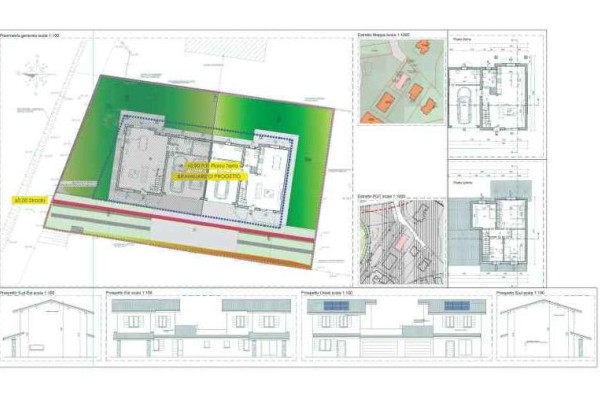
Manerba del Garda
Rif M0069 - Manerba del Garda in zona immersa nel verde , proponiamo terreno edificabile con progetto approvato e oneri completamente versati : pronto sin da subito per edificare la vostra villa sul lago di Garda. Possibilità di villa singola su piano unico , composta da grande zona giorno di 41 mq , 3 camere da letto con 3 bagni e lavanderia oltre a parcheggio doppio all'interno della proprietà , chiaramente gli spazi interni possono essere completamente personalizzati .Importante l'area privata intorno alla casa 1000 mq, con costruzione di 105 mq calpestabili. Possibilità di piscina privata...
€ 489.000
Padenghe sul Garda
Rif M0068 - Padenghe sul Garda , proponiamo ampio trilocale al piano terra con giardino privato sul fronte e sul retro. Il residence è recente ed è composto da 20 unità abitative, con parco privato e piscina comune. L'appartamento è composto da ampia zona girono, due camere e due bagni di cui uno collegato direttamente alla camera padronale. Impagabili gli spazi esterni , ampio portico coperto e giardino privato sul fronte e sul retro . A completare il tutto box auto doppio . Acquisto da privato. Prezzo escluso di imposte di legge.
€ 159.000
Calcinato
Rif RU0987 - Calcinato : su strada di forte passaggio , di collegamento per Lonato/ Desenzano, proponiamo la vendita in esclusiva di una attività storica e ben avviata. Il locale ha circa 80 posti a sedere , una superficie di circa 200 mq . Aperto dal lunedì al venerdì dalle 6 alle 20 , il sabato solo al mattino e la domenica turno di riposo , il locale di recentissima ristrutturazione ha anche il ristorante con cucina completa , forno elettrico per pizza . Una mole di lavoro importante del Bar associata ai pranzi di lavoro garantiscono un ottimo cassetto giornaliero . Ideale...
€ 250.000
Bedizzole
Rif RU12321 - Bedizzole : zona centro , anno 2006 , proponiamo la vendita esclusiva di un appartamento trilocale , piano terra con ampio giardino. La casa inserita in piccolo contesto condominiale ha ingresso pedonale privato da cancellino, portico coperto e ampio giardino su tre lati. La abitazione ha ingresso con salotto e cucina a vista , nella zona notte due camere , matrimoniale e camera media , bagno con vasca. Una scala interna dal salotto ci accompagna nella parte interrata dove troviamo una comoda e spaziosa taverna riscaldata , la lavanderia con un secondo servizio e il box auto. Al...
€ 193.000
Lonato del Garda
Rif M0067 - Lonato del Garda , proponiamo ampio trilocale ristrutturato al secondo e ultimo piano inserito in uno contesto di sole 9 appartamenti , in uno stabile che in passato era un vecchio filatoio del 1957. L'appartamento è composto da una grande sala di oltre 35 mq con due bagni finestrati e due camera da letto di ottime dimensioni parliamo di oltre 100 mq di abitazione. Da una scala a chiocciola si accede in un vano/sottotetto che potrebbe diventare un disbrigo o ripostiglio/ cameretta. Oltre a questo nel prezzo è compreso posto auto coperto nell'interrato. L'intervento di ristrutturazio...
€ 250.000
Bedizzole
Rif RU00987 - Bedizzole : in frazione proponiamo un appartamento anno 2006 trilocale piano terra con ampio giardino privato. La casa inserita in contesto residenziale tranquillo ha ingresso con cucina e sala a vista , nella zona notte due camere matrimoniali con porta finestra che danno sul retro della abitazione dove abbiamo ancora una striscia di giardino privato. Collegamento interno dalla sala all'interrato dove troviamo una locale lavanderia e una locale taverna . La casa ha box auto doppio nella zona box condominiale e posto auto scoperto privato.
€ 450.000
Lonato del Garda
Rif D00020 - A Lonato all'interno di un affascinante borgo storico del 1500 completamente ristrutturato anno 2013, proponiamo in vendita un elegante appartamento di circa 180 metri quadrati, situato al secondo piano e servito da ascensore. L' ingresso si apre su un ampia terrazza privata, ideale per momenti di relax all'aperto. All'interno troviamo un luminoso soggiorno con sala da pranzo, una cucina abitabile e un bagno finestrato con doccia. Una raffinata scala in legno conduce al piano superiore dove si sviluppa la zona notte, qui troviamo una spaziosa camera matrimoniale con cabina armadio, una seco...
€ 320.000
Polpenazze del Garda
Rif M0066 - A Polpenazze proponiamo questa interessantissima villa di testa con una totale vista lago e oltre 2500 mq di terreno privato. L'immobile necessità di essere ristrutturato , ma il prezzo comprende di progetto , autorizzazioni edilizie e paesaggistiche approvate oltre agli oneri già versati . La villa si sviluppa su due livelli con una superfice totale di 180 mq , oltre a box auto e piscina . La villa si presta anche per la realizzazione di due unità immobiliari distinte
€ 320.000
Polpenazze del Garda
Rif M0065 - A Polpenazze proponiamo questa interessantissima villa di testa con una totale vista lago e oltre 2500 mq di terreno privato. L'immobile necessità di essere ristrutturato , ma il prezzo comprende di progetto , autorizzazioni edilizie e paesaggistiche approvate oltre agli oneri già versati . La villa si sviluppa su due livelli con una superfice totale di 180 mq , oltre a box auto e piscina . La villa si presta anche per la realizzazione di due unità immobiliari distinte
€ 180.000
Vobarno
Rif M0063 - Nel centro di Vobarno , in zona di forte passaggio pedonale e carraio , proponiamo spazio commerciale/uffici di 119 mq , attualmente diviso in 3 diversi uffici con corridoio comune . Cucinotto e bagno utilizzabile dai tre spazi commerciali . L'immobile si presenta in perfette condizioni è stato recentemente completamente ristrutturato . Possibilità di personalizzazioni interne e divisione interna degli spazi .
