-
Superficie
128 mq
-
Bagni
2
-
Camere
2
Descrizione
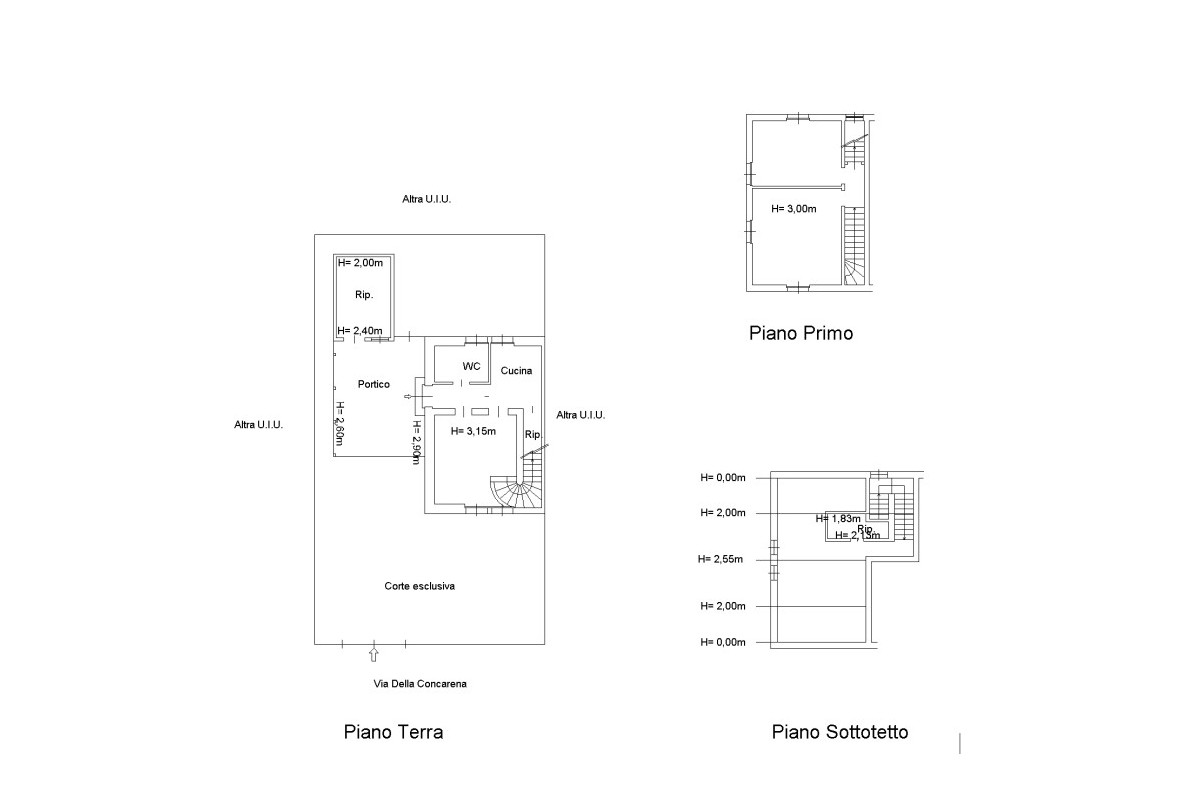
A Roncadelle in zona servita e tranquilla proponiamo interessantissima villetta a schiera di testa di 128mq con doppio giardino , posto auto esterno coperto e ingresso indipendente così composta : Dal porticato esterno, dove è posto un comodo e spazioso ripostiglio correttamente allacciato alle utenze idraulico elettrice , si entra nella casa dove veniamo accolti da una sala , un bagno finestrato con doccia e una cucina semi abitabile. Al piano primo abbiamo due spaziose camere da letto matrimoniali e infine al piano secondo una comodissima mansarda divisa in due ampi spazi abitabili e un secondo bagno anch'esso finestrato con doccia. La soluzione viene venduta arredata di cucina , caldaia a condensazione, pannelli fotovoltaici da 4KW senza unità di accumulo, Split F/C in tutte le zone, infissi doppi vetri. La villetta è stata ristrutturata internamente con impianto idraulico e elettrico nel 2000 e a livello di tetto nel 2023 e necessita di qualche rifinitura estetica principalmente esterna. Classe Energetica E. Ottima soluzione data la zona eccellente prossima a tutti i servizi essenziali. Libera da Giugno 2026.

















