-
Superficie
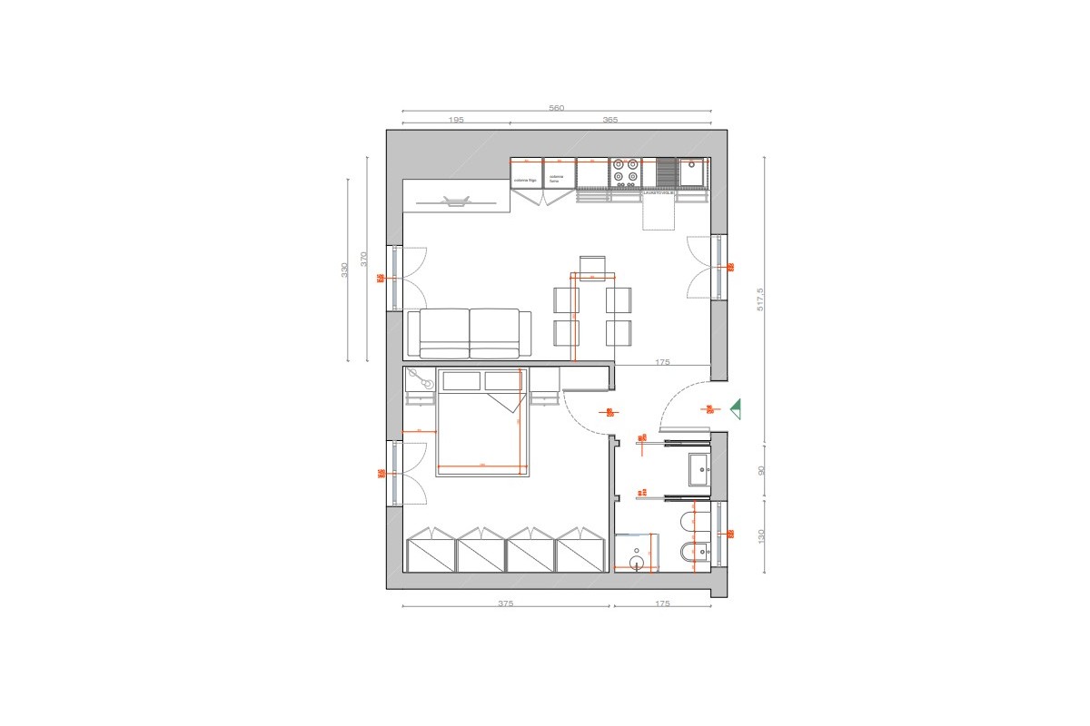
45 mq
-
Bagni
1
-
Camere
1
Descrizione
A Brescia , quartiere Primo Maggio in zona molto signorile e posta su strada semi privata, proponiamo porzione di villetta terra cielo disposta su un'unico piano così composta :
Dall'ingresso indipendente con piccola entrata accediamo alla zona giorno con sala e zona pranzo e cucina a vista ( possibilità di mantenerla separata dalla sala ) , accediamo poi sempre dall'entrata ad una camera da letto matrimoniale e ad un bagno finestrato con doccia con antibagno.
La Soluzione è in fase di ristrutturazione completa con capitolato, inclusa l'impiantistica idraulica e elettrica, e sarà ultimata in 3 mesi dalla proposta d'acquisto.
Viene venduta non ammobiliata e non arredata eccetto per i sanitari.
Riscaldamento Autonomo con 2 pompe di calore F/C senza caldaia in quanto si è scelto di renderla full electric. Doppi vetri , tetto rifatto. Posto auto esterno e adiacente alla casa ma non accatastato dunque pubblico ma sempre disponibile e usufruibile in quanto l'abitazione è posta su una strada chiusa. No spese condominiali.
Resta dunque un ottima soluzione da mettere a reddito o da abitare per una coppia anche data l'ottima posizione, la zona molto signorile e curata, il prezzo contenuto e la vicinanza a tutti i servizi principali della città. Da vedere.















